Gits
B0003 - APP
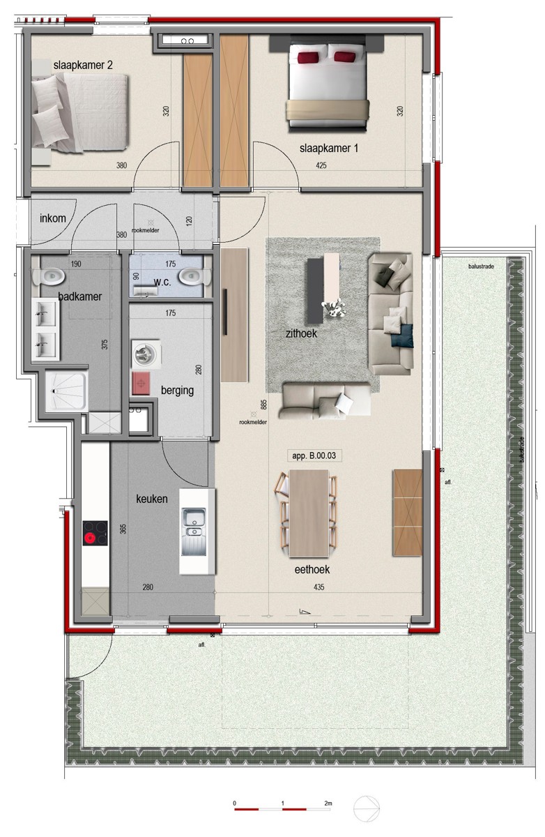
Woonproject Hof Ter Prinne telt dertien appartementen en zeven woningen telt, verdeeld over vijf verschillende woonunits. Ieder appartement en woning kent een unieke indeling. Hof Ter Prinne focust op hedendaagse architectuur. Het wit grijze exterieur zorgt voor een open en frisse sfeer die perfect samengaat met de groene omgeving. De unieke mix van woningen en appartementen brengt meerdere generaties samen, terwijl elk zijn eigen wereld behoudt. Ontdek hier de appartementen, telkens met een ruime woon- en eetkamer, een ingerichte keuken en badkamer en 2 slaapkamers. Op het domein zijn parkeerplaatsen, garages en een fietsenberging. Alle appartementen zijn afgewerkt en dus instapklaar, snel verhuizen is mogelijk. Contacteer ons en ontdek alle mogelijkheden!
2 slaapkamers
1 badkamer
E39
Bekijk het plan van dit appartement
Bekijk meer informatie over dit pand
Bouwvergunning: Ja
Verkavelingvergunning: Ja
Bodemattest: Ja
Terrein - bestemming: Woongebied
Dagvaarding: Neen
Waarde e-peil (nieuwbouw): 39
O-peil: Effectief overstromingsgevoelig gebied
Dagvaardingstype: Geen rechterlijke herstelmaatregel of bestuurlijke maatregel opgelegd
Vraag jouw rendement aan
Projectbrochure
Meer weten? Bekijk alvast de brochure en laat je verder inspireren.
Of contacteer ons
Ontdek wat deze plek te bieden heeft voor jouw happy home, happy life
Contact











